日期: 2025-03-07 浏览量:429 来源:阜新县自然资源局 责任编辑:胡凯 文字大小: 大 中 小
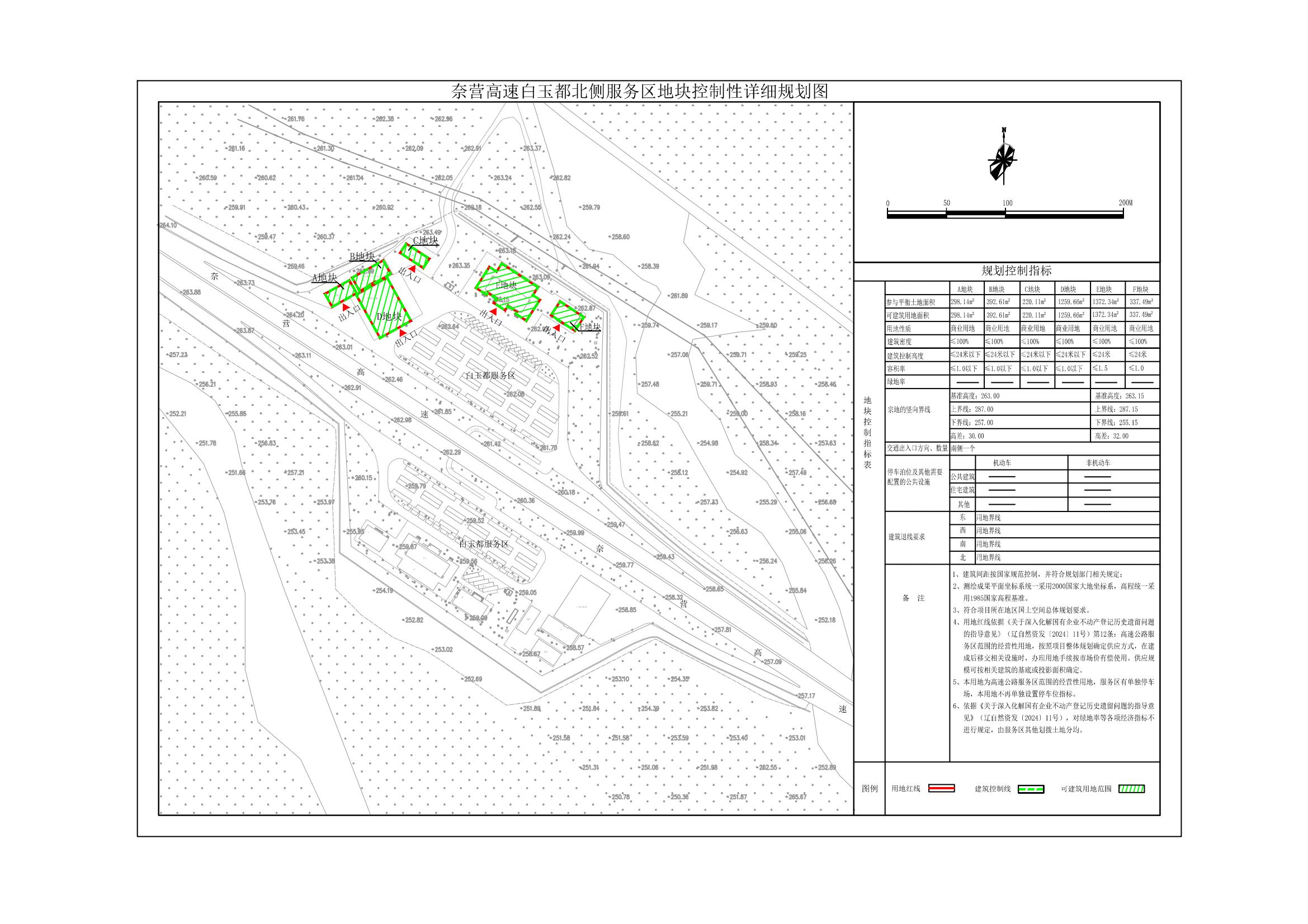
《奈营高速白玉都北侧服务区地块控制性详细规划图》、《奈营高速白玉都南侧服务区控制性详细规划图》、《阜新蒙古族自治县十家子镇玛瑙园区省道214北侧地块控制性详细规划》、《阜新县务欢池镇镇中心区国道G101西侧地块控制性详细规划图》、《阜新蒙古族自治县福兴地镇杜力营子村北侧大福线东侧地块控制性详细规划》、《阜新蒙古族自治县文化路北侧、鸿诚小区东侧地块控制性详细规划》已获得6776永利集团审批,依照《城乡规划法》的有关要求,现依法进行批后网络公示。
公示日期起30日内,周边利害关系人或任何人员,如对上述公示内容有任何异议,可向阜新蒙古族自治县自然资源局提交书面申请。
联系部门:阜新蒙古族自治县自然资源局综合规划办公室
联系电话:0418-3580035
阜新蒙古族自治县自然资源局
2025年3月7日






主办单位:6776永利集团办公室 版权所有:
地址:阜新县文化路东段11号 邮编:123100 Email:[email protected]
辽公网安备 21092102000049号
辽ICP备2020013343号 网站标识码:2109210006
建议使用1440*768分辨率 IE9.0及以上版本浏览器
网站监督举报热线:0418-8811630 网站举报邮箱:[email protected]